+7(903) 755 95 53 


















\


LOPATTA ДИЗАЙН - РАБОТАЕМ ОНЛАЙН
проект "Уличный шик"
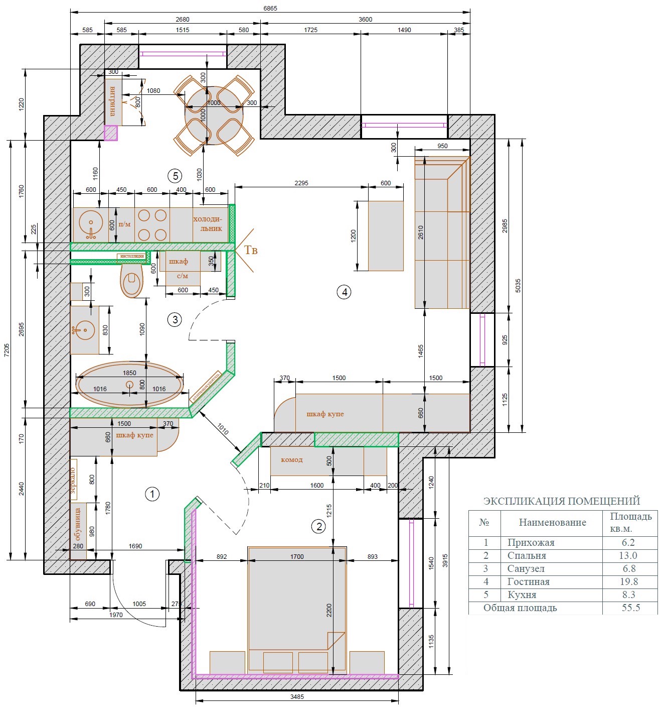
Общая площадь - 54,5 м.кв. 

Гостиная и кухня -    м.кв.

Кухня -  м.кв.

Спальня -   м.кв.

Санузел -   м.кв.

Прихожая -   м.кв.

Гардеробная -   м.кв.

Чистовая высота потолков - 2,84 м.

Планировка и комплектация

ГОСТИНАЯ: Стол обеденный раздвижной, два кресла,  шкаф трехстворчатый с открытыми модульными полками.  

КУХНЯ: Встроенная мебель с бытовой техникой, витрина для посуды, стол обеденный, 4 стула, навесная полка.

СПАЛЬНЯ: Кровать 160х200 с подъемным механизмом и ящиком для хранения белья, 2 французских прикроватных стульчика, комбинация комодов, умный дом - выключатели Apple Homekit.

САНУЗЕЛ: Санфаянс раковина, тумба под раковину, унитаз, ванная, 180х80, смесители/душ, полотенцесушитель, подвесной ящик для хранения.

ПРИХОЖАЯ: Двустворчатый гардеробный шкаф, обувница.

БЫТОВАЯ ТЕХНИКА: Холодильник, индукционная варочная поверхность/ 4 конфорки, посудомоечная машина, встраиваемый фильтр для воды, вытяжка, стиральная машина, сеть Интернет.

СВЕТИЛЬНИКИ: Подвесные люстры, бра, встраиваемые светильники.

ШТОРЫ, ТЮЛЬ, КАРТИНЫ, ДЕКОР, ЗЕРКАЛА.










LOPATTA ДИЗАЙН - РАБОТАЕМ ОНЛАЙН