+7(903) 755 95 53 

















LOPATTA ДИЗАЙН - РАБОТАЕМ ОНЛАЙН
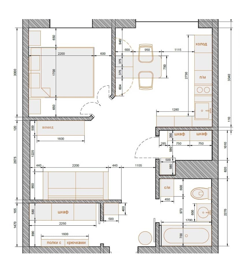
Проект "Лондон-Париж"

 +7 (903) 755 9553

Общая площадь - 45,0 м.кв.
Гостиная и кухня - 16,4 м.кв.
Кухня - 6 м.кв.
Спальня - 13,5 м.кв.
Санузел - 4,9 м.кв.
Прихожая - 5,3 м.кв.
Гардеробная - 3,1 м.кв.
Чистовая высота потолков - 2,84 м.

Планировка и комплектация

ГОСТИНАЯ: Диван 3-х местный, комод, полка навесная, торшер.

КЛАДОВАЯ: Спрятана за зеркальной дверью, вход из гостиной.

КУХНЯ: Встроенная мебель с бытовой техникой, 2 витрины, образующие вместе с обеденным столом "остров", 2 мягких стула.

СПАЛЬНЯ: Кровать 160х200 с подъемным механизмом и ящиком для хранения белья,  2 прикроватные тумбы, подвесные светильники, нестандартная двойная межкомнатная дверь.

САНУЗЕЛ: Санфаянс раковина, тумба под раковину, унитаз, ванная, смесители/душ, полотенцесушитель, подвесной ящик для хранения.

ПРИХОЖАЯ: Оборудованная гардеробная комната, комод, пуф.

БЫТОВАЯ ТЕХНИКА: Холодильник, индукционная варочная поверхность / 2 конфорки, посудомоечная машина, встраиваемый фильтр для воды, вытяжка, стиральная машина, сеть Интернет.

СВЕТИЛЬНИКИ: Подвесные люстры, бра, встраиваемые светильники.

ШТОРЫ, ТЮЛЬ, КАРТИНЫ, ДЕКОР, ЗЕРКАЛА.
















LOPATTA ДИЗАЙН - РАБОТАЕМ ОНЛАЙН